









Prodaja, Zemljište, Građevinsko, Splitsko-dalmatinska županija, Podgora
Podrinje
Dodaj u omiljene
Kreditni kalkulator
Kreditni kalkulator
ID I33765
Detalji
Vrsta usluge
Prodaja
Vrsta nekretnine:
Zemljište
Površina
1675 m2
Površina parcele
1675 m2
Lokacija
Podgora
Dokumentacija
Građevinska dozvola
450.000 €
Opis
GRAĐEVINSKO ZEMLJIŠTE, PODGORA, MAKARSKA
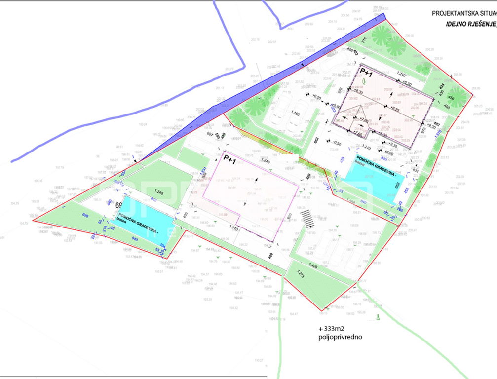
Građevinsko zemljište s projektima i građevinskom dozvolom – Podgora, Makarska rivijera
U srcu mirne i autentične Gornje Podgore, samo nekoliko minuta vožnje od centra mjesta i plaža, prodaje se građevinsko zemljište ukupne površine 1.675 m² s već izrađenim projektima za dvije moderne vile s bazenima te pravomoćnom građevinskom dozvolom za jedan od objekata. Ova jedinstvena ponuda omogućuje budućem vlasniku brzu i jednostavnu realizaciju gradnje, bez čekanja i dodatne administracije.
Zemljište se prostire na blagoj padini s koje se pruža neometan panoramski pogled od 180° na more, otoke i planinu Biokovo, a okruženo je maslinikom s više od trideset stabala autohtone sorte, što cijelom prostoru daje poseban mediteranski ugođaj i privatnost. U naravi se radi o uređenom terenu s izvedenom geodetskom izmjerom i podjelom na dvije zasebne parcele, do kojeg vodi pristupni put, dok se voda, struja i telekomunikacije nalaze neposredno uz zemljište.
Idejni projekti za dvije vile s bazenima i pomoćnim sadržajima izrađeni su u skladu s važećim i novim prostornim planom općine Podgora, što budućem investitoru pruža sigurnost i slobodu u prilagodbi konačnog rješenja. Gornji objekt ima glavni projekt i pravomoćnu građevinsku dozvolu, dok donji ima izrađen idejni projekt i sve zadovoljene uvjete za ishođenje dozvole.
Zemljište se nalazi u mirnom okruženju, okruženo maslinicima, bez susjednih građevina koje bi narušavale pogled ili privatnost. Položaj omogućuje potpunu tišinu i opuštanje, a istodobno odličnu povezanost s Makarskom, udaljenom svega dvanaest minuta vožnje, te Splitom i Dubrovnikom koji su lako dostupni unutar nekoliko sati.
Ova nekretnina predstavlja izvrsnu priliku za investiciju – bilo za izgradnju luksuznih vila za turistički najam, bilo za stvaranje privatnog mediteranskog utočišta s pogledom koji oduzima dah. S urednom dokumentacijom, riješenim vlasništvom i pripremljenim projektima, sve je spremno za početak.
Priključci
Struja
Voda
Kanalizacija
Karakteristike
Pogled na more
Lokacija
Kalkulator kredita

Maja Majer