










Prodaja, Zemljište, Građevinsko, Grad Zagreb, Maksimir, Remete
Gospočak
Dodaj u omiljene
Kreditni kalkulator
Kreditni kalkulator
ID I34830
Detalji
Vrsta usluge
Prodaja
Vrsta nekretnine:
Zemljište
Površina
2454 m2
Površina parcele
2454 m2
Lokacija
Remete
550.000 €
Opis
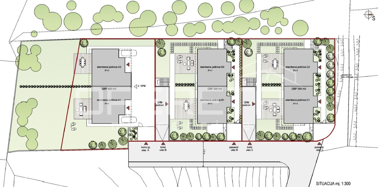
PRODAJA ZEMLJIŠTA, REMETE, GOSPOČAK, 2454M2.
Prodaje se odlično, pravilno zemljište blagog nagiba za izgradnju ukupno 3 objekta po max 400 brp-a. Idealno za gradnju urbanih vila ili obiteljskih kuća.
Odlična, mirna pozicija na kraju slijepe ulice. Južna orjentacija i lijep pogled prema gradu.
Sve komunalije odmah kraj parcele.
Mogućnost kupnje zasebnih parcela od 600m² ili 1.200m².
Priključci
Struja
Voda
Kanalizacija
Plinovod
Karakteristike
Lijep pogled
Mirna lokacija
Lokacija
Kalkulator kredita

Ivan Karatović