
















Luksuz i elegancija na 70 m od plaže – stan S2C – Okrug Donji, Čiovo
Planikovica
Oblíbené
Kalkulátor
Kalkulátor
ID I33703
Detaily
Typ nabídky
Prodej
Typ nemovitosti:
Byt
Velikost
85,45 m2
Lokalita
Čiovo
Počet pokojů
2
Počet koupelen
2
Podlaží
1/2
Rok výstavby
2026.
Dokumentace
Vlastnický list
Stav
Novostavba
440.000 €
Popis
Luxury and Elegance 70 m from the Beach – Apartment S2C – Okrug Donji, Čiovo
This project of modern and contemporary architecture is where the blue of the sea meets top-class design and the Mediterranean way of life. Only 70 meters from the crystal-clear sea, it offers the perfect blend of elegance, comfort, and privacy.
Okrug Donji offers peace, the sea, and an authentic Mediterranean atmosphere, with excellent connections to Trogir, Split Airport, and the city of Split – an ideal choice for those seeking luxury close to the sea, yet away from the crowds. Known for its unspoiled nature, clear waters, and seaside promenades, Okrug Donji is becoming one of the most sought-after locations for both living and vacationing.
Currently under construction, every detail of this project has been carefully designed to ensure the highest level of quality.
The complex consists of luxury apartments distributed across three semi-detached buildings (each with only six apartments), and one additional building with three apartments. A shared swimming pool adds extra value – a perfect spot for relaxation and socializing. Four luxury villas will also be part of the complex, completing this unique project that covers a total area of 5,700 m².
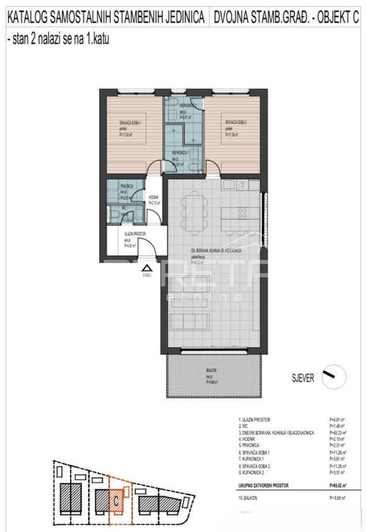
Apartment S2C, located on the 1st floor, offers 80,62 m² of living space with a carefully planned layout: hallway, laundry room, WC, two bathrooms, spacious living and dining area, kitchen, two bedrooms, and a balcony of 9,66 m² (coefficient 0.50).
There is a shared pool for Buildings C and D, which together include six apartments.
An outdoor parking space is mandatory with the apartment, priced at €12,500.
This project represents a secure and valuable investment – whether you are looking for a modern home in Dalmatia or a property with excellent potential for tourist rental.
Dodatečné
Balkon
Parkování
Vytápění
Klimatizační zařízení
Luxusní
Výhled na moře
Lokalita
Kalkulátor

Danijela Haide