





















Prodaja, Stan, 3-sobni, Grad Zagreb, Gornji Grad - Medveščak, Centar
Ribnjak
Oblíbené
Kalkulátor
Kalkulátor
ID I34082
Detaily
Typ nabídky
Prodej
Typ nemovitosti:
Byt
Velikost
85 m2
Lokalita
Centar
Počet pokojů
2
Počet koupelen
2
Podlaží
Vysoké přízemí/3
Rok výstavby
1938.
Energetický štítek
Ve výstavbě
Dokumentace
Vlastnický list
Stav
Udržováno
424.000 €
Popis
PRODAJA, STAN, ZAGREB, CENTAR, Ribnjak.
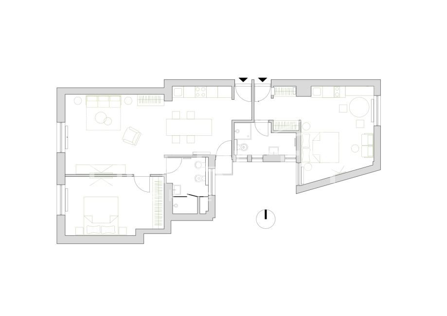
U ponudi je stan od 85m², u visokom prizemlju dobro održavane zgrade sa samo četiri stana.
Stan je trenutno u turističkom najmu i funkcionira kao dvije zasebne cjeline.
Po želji novog vlasnika može se jednostavnim preinakama vratiti opet u jednu cjelinu.
Kompletno je adaptiran 2018. godine - sve instalacije- elektro, plin, novi radijatori i bojleri, keramika i stolarija, Kvalitetna PVC stolarija.
Postavljena su i protuprovalna vrata s digitalnom bravom.
STAN 1: studio apartman, cca 30m²
Sastoji se od ulaznog prostora, kupaonice i openspace prostorom za spavaći i dnevni dio s kuhinjom.
STAN br. 2: dvosoban stan, cca 55 m²
Sastoji se od ulaznog prostora, dnevnog boravka s kuhinjom i prostorom za blagovanje, spavaće sobe i kupaonice
Orijentacija na zapad s pogledom na park Ribnjak i istok i dvorišnu zelenu stranu.
Prozračan, svijetao, u blizini svih sadržaja, tramvaja, javnih garaža, šoping centara, te do Trga bana Jelačića samo par minuta šetnje.
Dokumentacija uredna.
Prodaje se namješten kako je prikazano.
Prilika za život ili kao investicija.
Dodatečné
Parkování
Vytápění
Plyn
Orientace
V
Z
Lokalita
Kalkulátor

Marina Zubak