
















FOR SALE, Vis center, newly furnished studio with balcony, rare opportunity
Dubrovačka
Add to Favorites
Credit Calculator
Credit Calculator
ID I34737
Details
Offer Type
Sale
Property Type:
Apartment
Size
28,2 m2
Location
Vis
Number of Rooms
1
Number of bathrooms
1
Floor
Ground Floor/2
Year Built
2001.
Energy performance certificate
In Construction
Documentation
Ownership Certificate
Condition
Maintained
126.652 €
Description
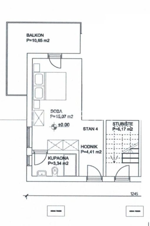
FOR SALE, Vis center, newly renovated, furnished studio apartment with terrace, unique
Fully equipped charming studio apartment with a total usable area of 33.50 m², located on the ground floor of a building with 8 apartments in one of the most sought-after locations in the town of Vis, the Luka area. The studio (no. 4) consists of an entrance hallway, bathroom, and a spacious room with access to the terrace, ideal for relaxation and enjoyment.
The studio is just a few minutes' walk from well-maintained beaches, shops, restaurants, and all essential amenities, making it perfect for vacation or tourist rental. Parking is available in the immediate vicinity. Handover on 1.12.2026.
The town of Vis, known for its authentic beauty and crystal-clear sea, offers a unique blend of tranquility and Mediterranean lifestyle, and this apartment allows you to have all of that at your fingertips. Take the opportunity to invest in real estate in one of the most desirable destinations on the Adriatic.
Additional
Parking
Heating
Air Conditioner
Location
Loan Calculator

Alma Curl