Novoizgrađena moderna vila s garažom i bazenom, Kaštel Novi
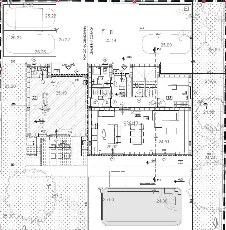
Ova suvremena vila, izgrađena 2025. godine, osmišljena kao obiteljska nekretnina koja jednako dobro funkcionira i u turističkoj namjeni, smjestila se u Kaštel Novom, na parceli od 517 m2.
Vila obuhvaća visokokvalitetnu gradnju s raznim sadržajima, opremom i smislenim rasporedom.
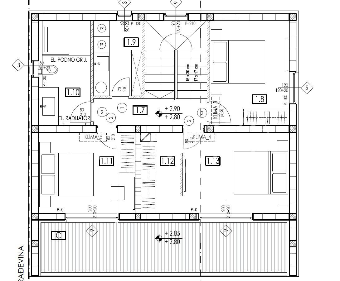
Kroz dvije etaže i svojih 181 m2 (202 m2 bruto površine) nalaze se 4 spavaće sobe, otvoreni dnevni boravak s kuhinjom i blagovaonicom, 2 kupaonice, odvojeni toalet, 2 spremišta, garderoba i vešeraj.
Suvremen dizajn posebno dolazi do izražaja u dnevnom boravku sa širokim staklenim stijenama što pružaju mnogo sunčeve svjetlosti i povezuje sa stražnjim dvorištem.
U tom dijelu uređenog dvorišta nalazi se bazen sa sunčalištem, ljetna kuhinja s velikim kamenim roštiljem te livadom koja pruža mogućnost za dodatne aktivnosti ili sadržaj. Bazen uz pomoć dizalice topline ima mogućnost grijanje ili hlađenje vode.
U prednjem ulaznom dvorištu je osigurano parkiralište za 4 automobila, kao i garaža za 2 vozila. Garaža je zapravo osmišljena kao pomoćni objekt s gostinjskim toaletom, sve ugrađeno u vilu, a dodatno otvoreno sa stražnjim dvorištem kako bi ljetna kuhinja i boravak bio komforniji.
Vila je u potpunosti opremljena i namještena. Svaka soba je klimatizirana, provedeno je podno grijanje, a kuća ima ugrađen smart home uređaj za kontrolu većine opreme, poput el. roleta, klima, podnog grijanja i muzike.
Šetajući nekretninom, od samo pristupa i ulaza, vidljivo je kako je sve rađeno po mjeri te je sve nekako „na svojem mjestu“. Pregršt detalja, povezan raspored i komforni prostor.
Kombinacija promišljene gradnje, kvalitetnih materijala i dobro organiziranih unutarnjih i vanjskih prostora stvara nekretninu koja se može koristiti bez daljnjih ulaganja, za cjelogodišnje korištenje ili turističku namjenu.