Poslovni prostor, Pula, Pula-Centar, Prodaja, 141.50m²

  • €140,000
  • €989 m²
Pula, Pula, Centar

Poslovni prostor, Pula, Pula-Centar, Prodaja, 141.50m²

  • €140,000
  • €989 m²
  • I33839
  • ID Nekretnine
  • Poslovni prostor
  • Vrsta nekretnine
  • 141.50

Prodaja, Poslovni prostor, Pula, Pula-Centar

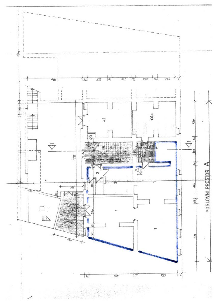
Poslovni prostor površine 141,50 m², smješten u podrumu austrougarske zgrade s prijelaza iz 19. u 20. stoljeće.
Sastoji od sedam prostorija, s visinom stropa od 3 do 5 metara, te posjeduje tri ulaza i sanitarni čvor.

MOGUĆNOST PRENAMJENE U STAMBENI PROSTOR

Nekretnina je za adaptaciju, a moguće je priključiti vodu, struju i plin te ima i kanalizaciju. Zahvaljujući zanimljivom rasporedu i visini prostora, postoji mogućnost prenamjene u jednu ili više stambenih jedinica, kao i uređenja za različite poslovne namjene.

Smješten u strogom centru grada, lako je dostupan i pogodan za uredske, uslužne, galerijske ili slične djelatnosti kojima je važna atraktivna, povijesna i frekventna lokacija.

Značajke:

Zgrada s prijelaza 19./20. stoljeća
Potrebna adaptacija

Površina: 141,50 m²
Sedam prostorija
Visina stropa: 3 – 5 m
Tri ulaza
Sanitarni čvor
Priključci: voda, struja, plin, kanalizacija
MOGUĆNOST PRENAMJENE U STAMBENI PROSTOR

Za dodatne informacije ili termin nazovite ili pošaljite upit.

I33839
Centar
  • Lokacija Centar
  • Grad Pula
  • Županija Istarska
  • Kvart / Općina Pula

Detalji

  • Voda: Gradska
  • Plin: Ima
  • Stanje: Za adaptaciju
  • Vrsta građevine: Stambena zgrada
  • Parking: Od zgrade
  • Tip objekta: Ulični lokal

Energetski certifikat

  • Status: C
  • A+
  • A
  • B
  • | Energetski certifikat C
    C
  • D
  • E
  • F
  • G
  • H

Moglo bi Vas zanimati

Compare listings

Compare
Pretraži
Marijan Matković
  • Marijan Matković