Stan, Makarska, Prodaja, 66.17m²

  • €274,680
  • €4,150 m²
Makarska, Makarska, Veliko Brdo
Makarska, Makarska, Veliko Brdo

Stan, Makarska, Prodaja, 66.17m²

  • €274,680
  • €4,150 m²
  • I31430
  • ID Nekretnine
  • Stan
  • Vrsta nekretnine
  • 2024
  • Godina izgradnje
  • 66.17
  • 2
  • Sobe
  • 1
  • Kupaonica

Prodaja, Stan, Makarska

Stan Makarska: spoj luksuza, stila i udobnosti

Uživajte u panoramskom pogledu na more i planinu Biokovo direktno iz svog stana jer:
ovaj jedinstven projekt predstavlja novu dimenziju luksuza i modernosti na tržištu nekretnina u Makarskoj. Arhitektonsko rješenje, dizajn prostora i kvaliteta gradnje su po najvišim suvremenim standardima, s posebnim naglaskom na zaštitu okoliša i stvaranje vrhunskog životnog okruženja.
Projekt se sastoji od 3 zgrade sa 2 zajednička bazena.
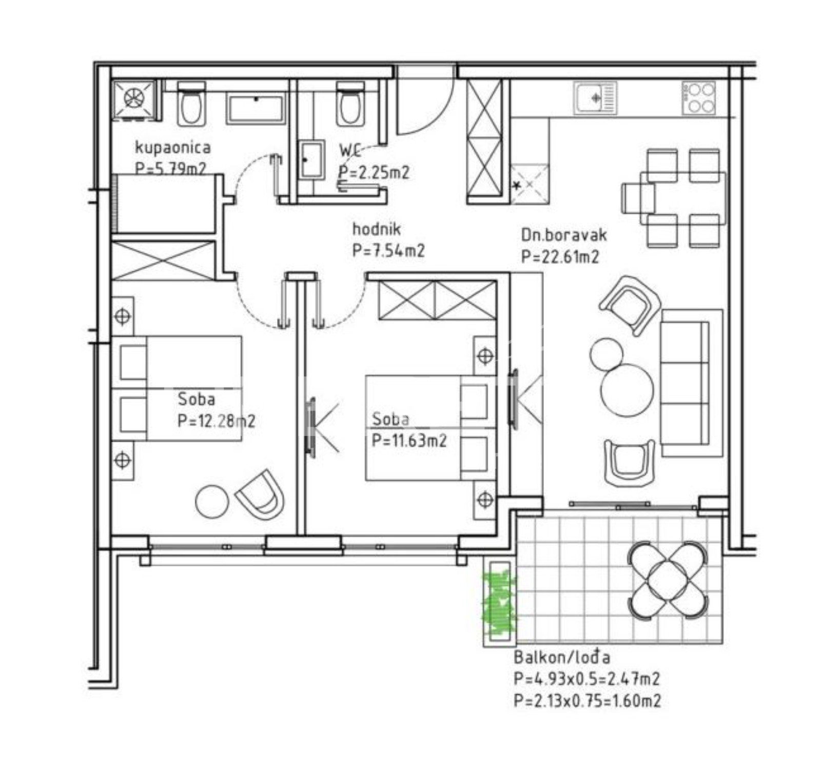
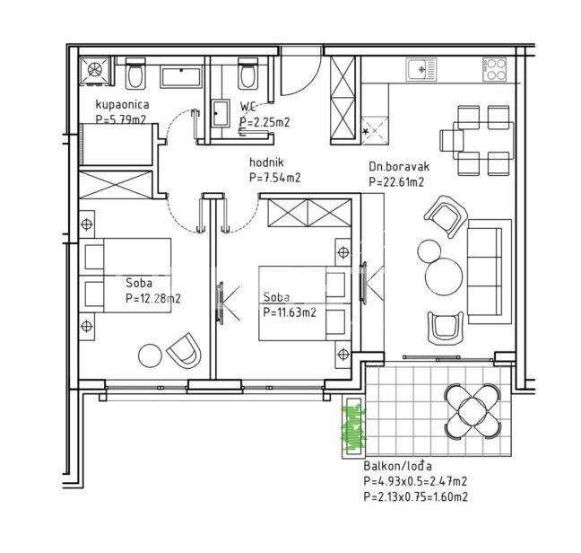
Ovaj stan se nalazi u zgradi broj 1, a površina stana iznosi 66,17 m² i sastoji se od: kupaonice (5,79 m²), WC-a (2,25 m²), hodnika (7,54 m²), dnevnog boravka s blagovaonicom (22,61 m²), dvije spavaće sobe (12,28 m² i 11,63 m²), balkona/lođe (4,93 m² i 2,13 m²)
Garažno parkirno mjesto je uključeno u cijenu.
Završetak radova i useljenje planirani su do kraja ove godine, pa je sada pravi trenutak da osigurate svoj dom ili investiciju.

Udaljenost od mora iznosi 900 m, a od centra Makarske 1.000 m.
Orijentacija stana je jugoistok.

Bogato uređena hortikultura i zajednički bazeni stvaraju idealan ambijent za opuštanje, dok s ove lokacije puca prekrasan panoramski pogled na more i planinu Biokovo.

I31430
Veliko Brdo
  • Lokacija Veliko Brdo
  • Grad Makarska
  • Županija Splitsko-dalmatinska
  • Kvart / Općina Makarska

Detalji

  • Samostalni WC: 1
  • Kupaonica + WC: 1
  • Broj katova: 4
  • Grijanje: Klima uređaj
  • Stanje: Novogradnja
  • Vrsta građevine: Zgrada
  • Parking: Garažno mjesto
  • Orijentacija: JI
  • Kat: 4
  • Broj etaža: 1

Moglo bi Vas zanimati

Compare listings

Compare
Pretraži
Danijela Haide
  • Danijela Haide