Stan, Šibenik, Šibenik okolica, Brodarica, Prodaja, 62.87m²

  • €213,758
  • €3,400 m²
Šibenik, Šibenik okolica, Brodarica
Šibenik, Šibenik okolica, Brodarica

Stan, Šibenik, Šibenik okolica, Brodarica, Prodaja, 62.87m²

  • €213,758
  • €3,400 m²
  • I34460
  • ID Nekretnine
  • Stan
  • Vrsta nekretnine
  • 2026
  • Godina izgradnje
  • 62.87
  • 1
  • Soba
  • 1
  • Kupaonica

Prodaja, Stan, Šibenik, Šibenik okolica, Brodarica

Stan u novogradnji, 62,87 m2, Šibenik- Brodarica

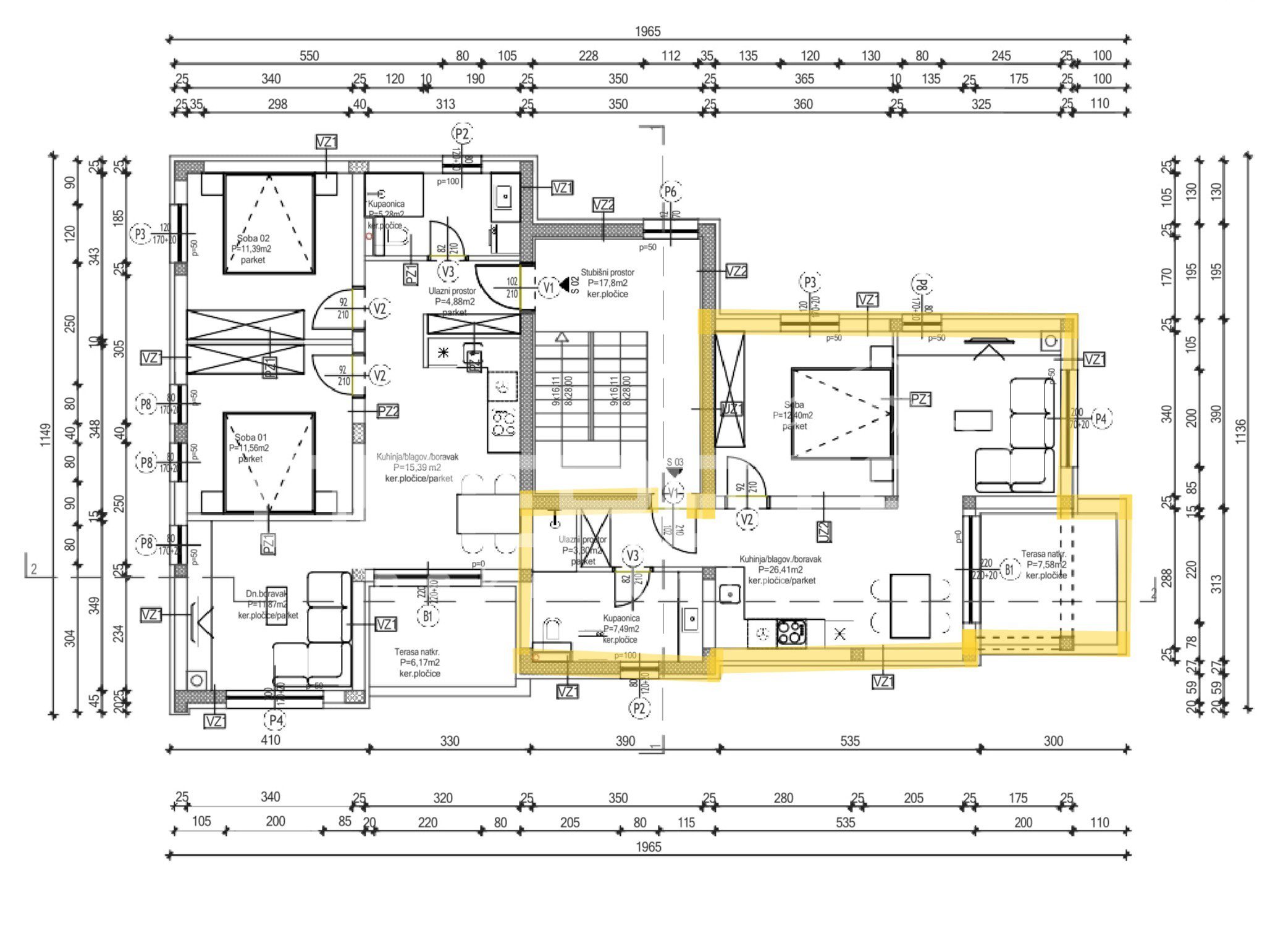
Na čestici površine 624 m² u izgradnji je moderna stambena zgrada s ukupno pet stanova i 11 parkirnih mjesta. Zgrada se sastoji od podruma, prizemlja i dva kata, a svaki stan ima pripadajuće spremište u podrumu, ograđeno zidovima i vratima, s prozorom koji omogućuje prirodno svjetlo i dodatnu funkcionalnost.

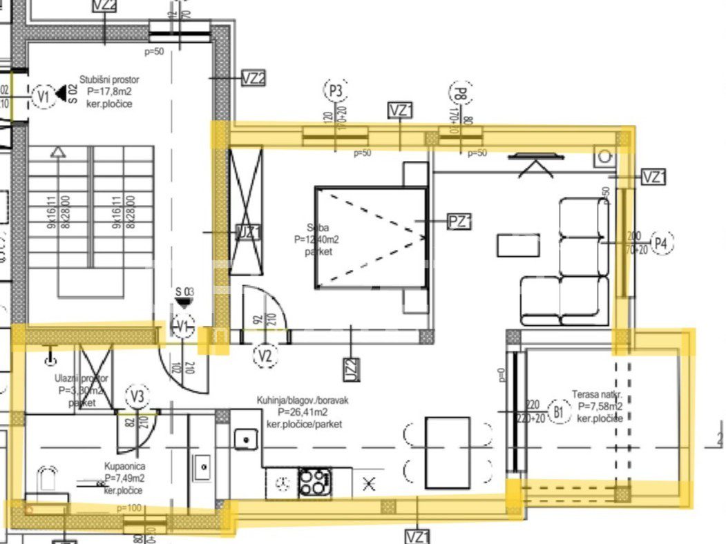
Na 1. katu zgrade smjesto se stan S3, površine 53,05 m², koji uključuje ulazni prostor, kupaonicu, spavaću sobu, kuhinju s blagovaonicom i dnevni boravak s natkrivenom terasom. Uz stan dolaze dva parkirna mjesta, od kojih je jedno natkriveno, kao i pripadajuće spremište u podrumu.

Stan će biti opremljen kvalitetnom keramikom, električnim podizačima roleta, podnim grijanjem u kupaonicama te s dva klima uređaja, što osigurava maksimalnu udobnost tijekom cijele godine.

Zgrada je smještena uz prometnicu, ali nije na glavnoj cesti, što jamči mir i privatnost. Do gradske plaže Rezalište je svega nekoliko minuta pješice, a shopping centar Dalmare i centar Šibenika nalaze se na manje od 10 minuta vožnje.

Zbog izvrsne lokacije i funkcionalnog rasporeda, ova nekretnina je idealna i za cjelogodišnji život i za turistički najam.

Planirani završetak radova je na ljeto 2026.

I34460
Brodarica
  • Lokacija Brodarica
  • Grad Šibenik
  • Županija Šibensko-kninska
  • Kvart / Općina Šibenik okolica

Detalji

  • Plin: Nema
  • Kupaonica + WC: 1
  • Broj katova: 2
  • Grijanje: Klima uređaj
  • Stanje: Novogradnja
  • Vrsta građevine: Zgrada
  • Parking: Parkirno mjesto
  • Kat: 1
  • Broj etaža: 1

Energetski certifikat

  • Status: U izradi
  • A+
  • A
  • B
  • C
  • D
  • E
  • F
  • G
  • H

Moglo bi Vas zanimati

Compare listings

Compare
Marija Bilić
  • Marija Bilić