

















Drei Reihenhäuser zur Renovierung in hervorragender Lage mit Panoramablick
Pazin
Zu Favoriten
Kreditrechner
Kreditrechner
ID I31236
Einzelheiten
Angebotsart
Verkauf
Immobilientyp:
Haus
Größe
360 m2
Grundstücksgröße
383 m2
Standort
Bertoši
Baujahr
1900.
Dokumentation
Eigentumsnachweis
Zustand
Renovierungsbedarf
88.000 €
Beschreibung
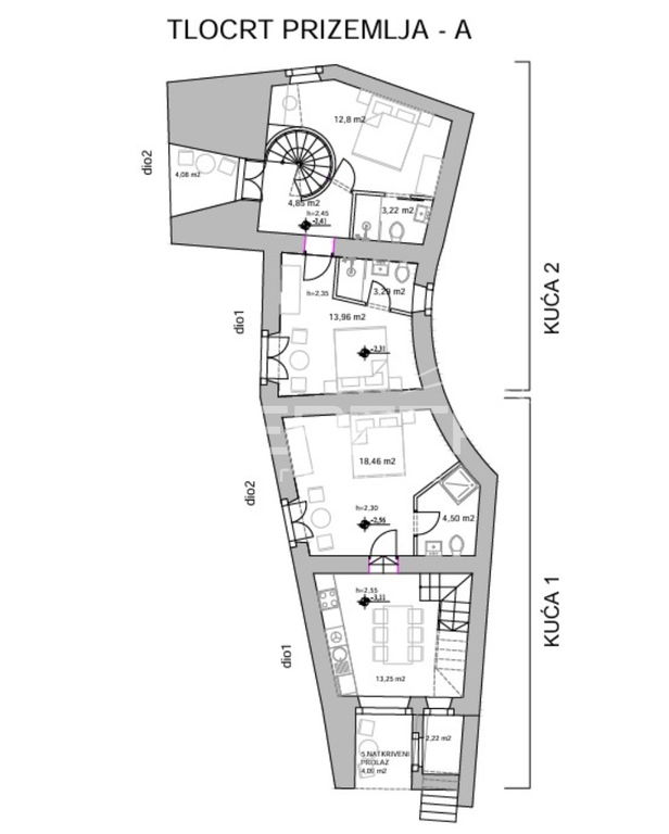
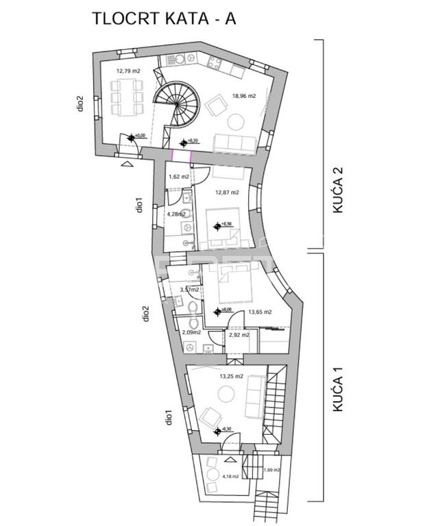
Zum Verkauf stehen drei Reihenhäuser zur Renovierung im Zentrum des Dorfes zwischen Gračišće und Kršan. Dieses Anwesen bietet eine einmalige Gelegenheit, ein Eigenheim oder ein Investitionsprojekt an einem Ort zu renovieren und zu schaffen, der Ruhe, Natur und einen spektakulären Panoramablick auf Čičarija, Učka und die umliegende Landschaft bietet.
Grundlegende Informationen:
- Jedes Haus verfügt über einen eigenen Wasser-, Strom- und Abwasseranschluss
- Gesamtwohnfläche: 180 m² pro Etage (insgesamt 2 Etagen)
- Gartenfläche: 189 m²
- Parkplatz: 11 m²
- Möglichkeit eines Gasanschlusses und eines optischen Internets
- Ost-Süd-West-Ausrichtung, die ganztägiges Sonnenlicht und den Genuss einer schönen Aussicht gewährleistet
Entfernungen:
- Geschäfte, Cafés und Restaurants – im Umkreis von 10 km
- Pazin – 11 km
- Autobahn – 14 km
- Meer (Plomin) – 16 km
- Strand – 23 km
Zur Umgebung:
Dieses Anwesen befindet sich in unmittelbarer Nähe von Potpićno, Pićno, Gračišće und Kršan, Orte reich an Geschichte, kulturellem Erbe und unberührter Natur.
- Gračišće ist eine mittelalterliche Stadt, die für ihre authentische Architektur und die Veranstaltung „Weintage“ bekannt ist, die Besucher aus der ganzen Region anzieht.
- Pićan, eine ehemalige Bischofsresidenz, bezaubert mit seinen alten Mauern, engen Gassen und Ausblicken auf die umliegenden Hügel.
- Kršan ist für seine Burg und die Nähe zum Naturpark Učka bekannt und ideal für Liebhaber eines aktiven Urlaubs.
- Potpićan ist eine kleine, aber wichtige Siedlung mit grundlegenden Annehmlichkeiten, die für das tägliche Leben geeignet sind.
Diese Immobilie bietet großes Renovierungspotenzial – ob als Familienhaus, Ferienhaus oder Investitionsprojekt im Herzen des istrischen Hinterlandes.
Für weitere Informationen und eine Führung kontaktieren Sie uns einfach!
Zusätzlich
Parkplatz
Garten
Ausrichtung
S
O
W